Quadrilocale in vendita

Roma, Via Luigi Boccherini - Parioli
€ 590.000
4 locali 4 locali
105 Mq 105 Mq
2 bagni 2 bagni

Quadrilocale in vendita

Roma, Via Luigi Boccherini - Parioli

Descrizione annuncio

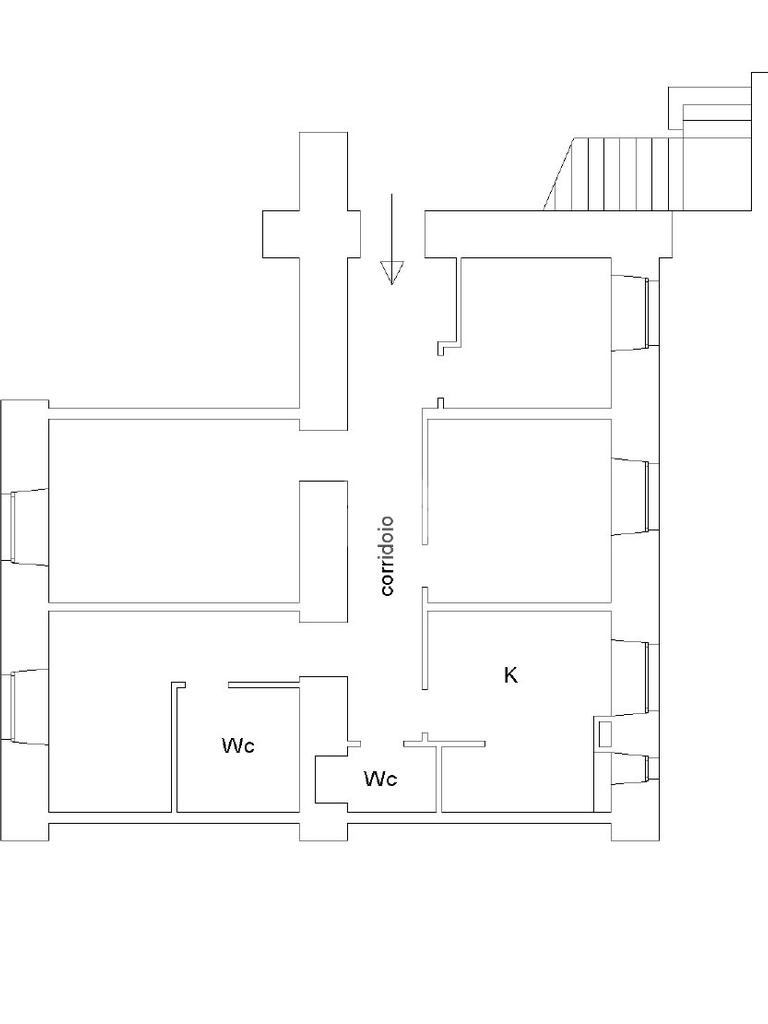
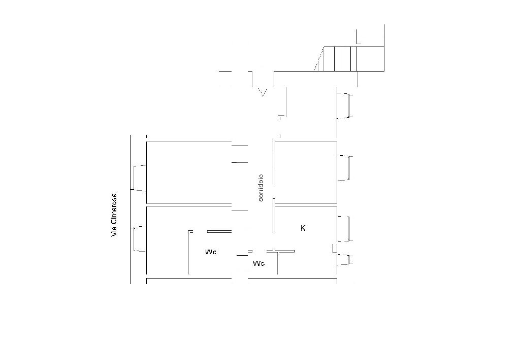
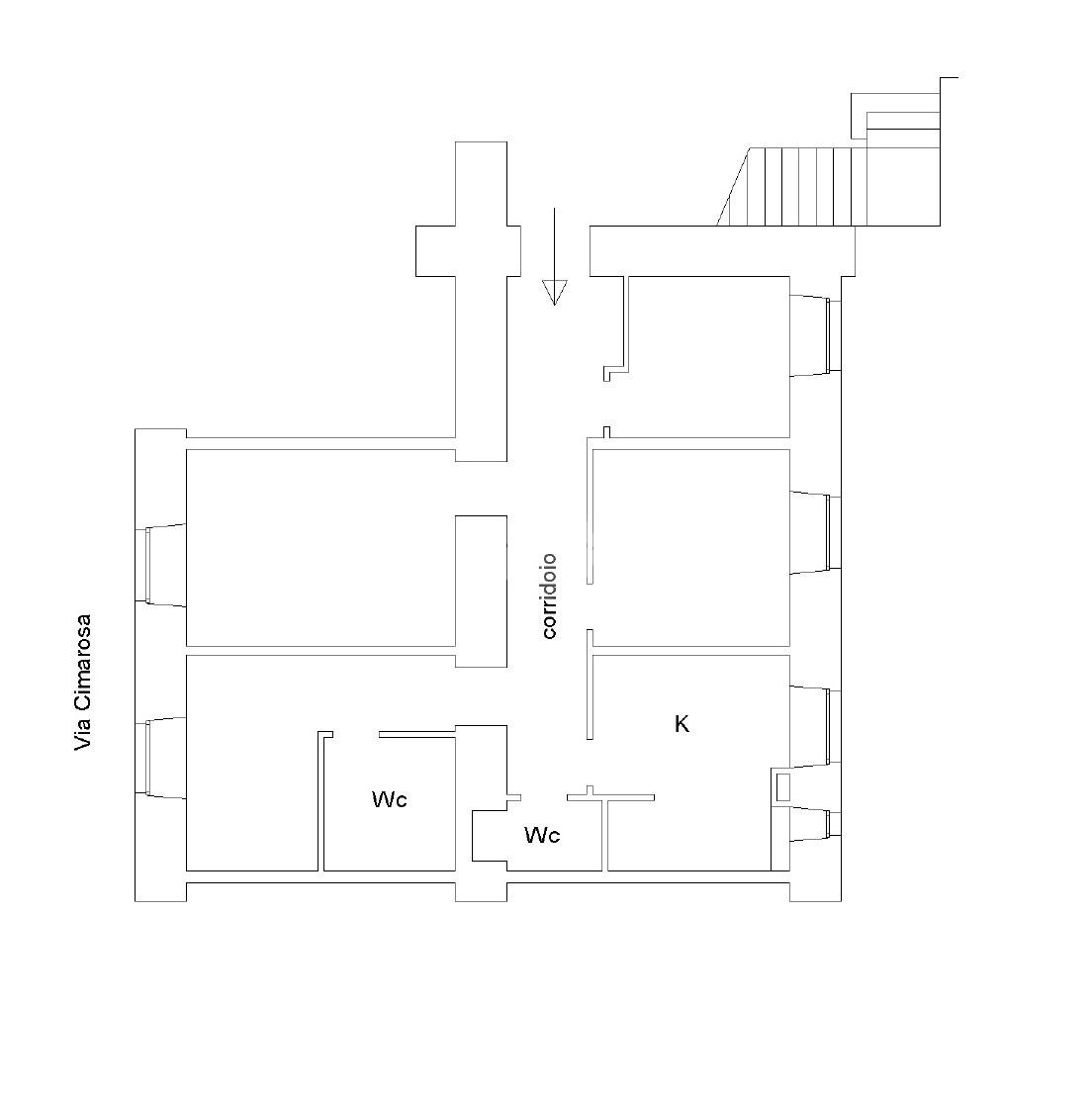
Nel cuore del prestigioso contesto di Piazza Verdi, proponiamo in vendita un elegante appartamento sito in uno splendido edificio storico del 1914 con servizio di portineria.

Con una superficie di 105 mq, l'immobile, al piano terra, offre spazi ben distribuiti e funzionali ed è composto da ingresso, soggiorno, due camere da letto, cameretta, cucina abitabile e due bagni.

La doppia esposizione, esterna su via Domenico Cimarosa e interna sul meraviglioso giardino condominiale, assicura una luminosità naturale a tutti gli ambienti.

L'immobile è stato di recente ristrutturato e si presenta quindi in ottime condizioni interne.

Pavimentazione in parquet.

Mostra tutto

Nelle vicinanze

Trasporto pubblico Trasporto pubblico
Castro Pretorio
Castro Pretorio
1,6 Km
Sant'Agnese/Annibaliano
Sant'Agnese/Annibaliano
1,7 Km
Euclide
Euclide
1,5 Km
Acqua Acetosa
Acqua Acetosa
1,6 Km
Valle Giulia
Valle Giulia
1,4 Km
Ricariche auto elettriche Ricariche auto elettriche
Roma Yser | EnelX
220 m
Eneldrive Bellini
270 m
Hilton Garden Inn Rome Claridge
460 m
Roma Arno | EnelX
560 m
Roma Regina Margherita | EnelX
570 m
Scuole Scuole
incontri in cucina scuola di cucina
370 m
Università Sapienza di Roma - Facoltà di Informatica, Sociologia, Scienze della Comunicazione
550 m
Libera Università Internazionale degli Studi Sociali (LUISS) Guido Carli
660 m
Istituto Comprensivo "Luigi Settembrini" - Scuola Secondaria di I Grado
820 m
Scuola Paritaria Salesiana Maria Ausiliatrice
870 m
Farmacia Farmacia
doc*Tirso
130 m
Farmacia
290 m
Ronconi Paolo
440 m
Parafarmacia doc*Parioli
750 m
Piazza Regina Margherita
1,0 Km
Ospedali Ospedali
Ospedale S.Anna - A.S.L. Roma A
240 m
Clinica Parioli
870 m
Clinica Mater Dei
930 m
Casa di Cura "Assunzione di Maria Santissima"
1,3 Km
Clinica Valle Giulia
1,4 Km
Supermercati Supermercati
doc*Tirso
130 m
Punto Sma
510 m
Todis parioli
650 m
DOC Tevere
670 m
doc* Parioli
740 m
Negozi Negozi
lucarelli il pane
210 m
intimissimi
290 m
Sapord’Olio
320 m
Sport Center
330 m
pane per tutti
620 m
Bar Bar
Crema & Caffè
330 m
Piper Club
340 m
Bar
510 m
Panamino
660 m
Brylla
770 m
Ristoranti Ristoranti
Kilo
160 m
Chopsticks
170 m
La Balestra
170 m
L’isola d’oro
170 m
Fiore di Zucca
220 m
Mostra tutto

Caratteristiche

Rif.:
61104478
Piano:
Terra di 6 con ascensore
Totale piani:
6
Camere da letto:
3
Arredamento:
Assente
Condizionamento:
Autonomo
Mostra tutto
Prezzo Prezzo
€ 590.000
Rata mutuo Rata mutuo
€ 2.749 / mese
Spese annue Spese annue
€ 2.000
Proponi il tuo prezzoProponi il tuo prezzo

Classe Energetica

G
G
G
G
G
G
G
G
G
EP globale non rinnovabile:
175.00 kW h/m² anno
EP globale rinnovabile:
175.00 kW h/m² anno
EP invernale del fabbricato:
EP estiva del fabbricato:
Anno di costruzione:
1914
Riscaldamento:
Centralizzato
Tipo impianto:
A radiatori
Tipo alimentazione:
Metano

Ti interessa visionare l'immobile?

Fissa un appuntamento  Fissa un appuntamento

Richiedi informazioni

* Questi campi sono obbligatori

Calcola il tuo mutuo

Semplice e senza impegno
Anticipo

( % )
Mutuo

( % )

pochi semplici passi

inserisci i tuoi dati
Questionario completato
Grazie per aver richiesto un appuntamento senza impegno con un nostro Consulente del Credito e Assicurativo.

Hai inserito correttamente tutti i dati necessari e a breve riceverai una e-mail con un link da convalidare per inviare i tuoi dati.
Affiliato
Studio Trieste 2 Srl
Viale Regina Margherita, 200/E 00198 Roma (RM)

Il nostro staff


  • Antonello Ripepi
    Affiliato

  • Vincenza Cattafi
    Coordinatrice

  • Sara Mancini
    Collaboratrice

  • Caterina Tridico
    Collaboratrice
Viale Regina Margherita, 200/E 00198 Roma (RM)
Zona: Centro Storico - Porta Pia - Parioli - Pinciano - Salario - Trieste
Mostra su mappa
Orari: dal lunedì al venerdì 09.00-20.00; sabato 09.00-19.30; domenica su appuntamento 09.00-12.30.
Affiliato
Studio Trieste 2 Srl
Viale Regina Margherita, 200/E 00198 Roma (RM)

2025 Tecnocasa Franchising S.p.A. - P. IVA 08365160152 - Via Monte Bianco 60/A 20089 Rozzano (MI). Ogni agenzia ha un proprio titolare ed è autonoma. Privacy policy | Policy utilizzo | Cookie policy